このページを印刷する
- 価格
-
650万円
- 坪単価
- 3.6万円
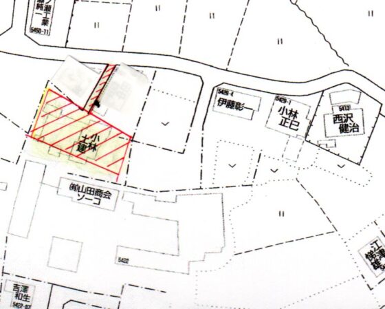
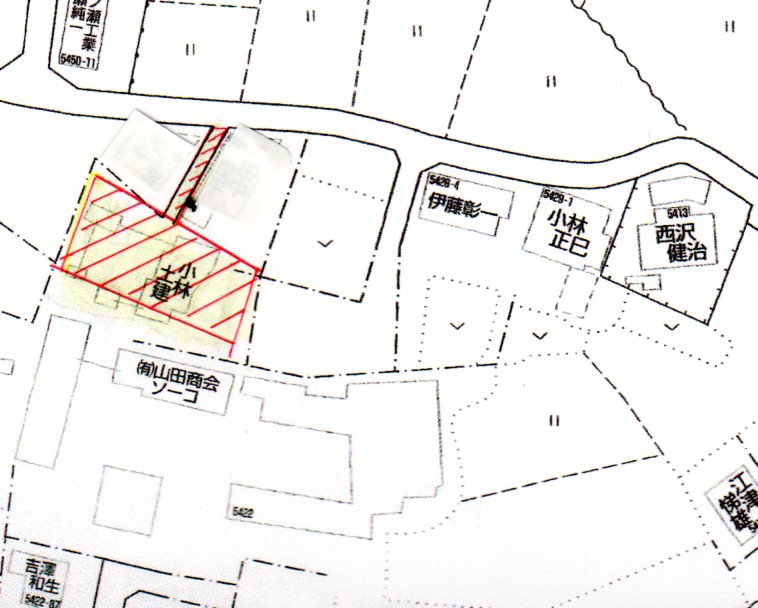
| 所在地 | 長野県大町市大町5461-8 |
|---|---|
| 建物名 | <大町市>宮田町の売地 |
| 交通 |
|
| 駐車場 | 取引態様 | 仲介 | |
|---|---|---|---|
| 引渡/入居時期 | 現況 | ||
| 地目 | 宅地 | 用途地域 | 無指定 |
| 都市計画 | 非線引き区域 | 地勢 | 平坦 |
| 土地面積 | 593.50m²(179.53坪) | 土地面積計測方式 | 公簿 |
| 建ぺい率 | 60% | 容積率 | 100% |
| 土地権利 | 所有権 | 接道状況 | 一方 |
| 接道方向1 | 北 | 接道間口1 | 4m |
| 接道種別1 | 公道 | 接道幅員1 | 4m |
| 周辺環境 | |||
| 設備・条件 |
|
||
| 自社物 | 自社物 | 状態 | 売出中 |
| 物件番号 | 070918 | 掲載期限日 | 令和7年9月更新 |
| 情報登録日 | 2025年9月17日 | 情報更新日 | 2025年9月17日 |
物件掲載内容と現況に相違がある場合は現況を優先といたします。
物件周辺マップ
ご注意
- 物件によっては正確な位置を示していない場合がございます。
- 現況が表示された内容と異なる場合は現況優先といたします。
- 表示されてる地図はOpenStreetMapより提供されてるデータに基づいたものであり、表示内容についての責任は負いかねます。















